【鍛鋼固定式球閥產品應用】
API鍛鋼固定式球閥主要適用于化工、冶金、石油、制藥等行業(yè)的各種高壓介質輸送管道中,適用溫度:-196~450℃;驅動方式:手動、氣動、電動、液動、渦輪動等;公稱通徑:1/2"~12";公稱壓力:150LB~2500LB;適用介質:水、氣、油品、天然氣和酸堿腐蝕介質。
【鍛鋼固定式球閥設計特點與執(zhí)行標準】
1、設計、制造 按API 6 D;
2、結構長度按 ANSI BI6.10;
3、連接法蘭:ANSI BI6.5MSS-SP44;
4、閥門檢查和試驗按API STD.598;
5、承插端符合ASME B16.11;
6、螺紋連接端(NPT)符合ANSI/ASME B1.20.1
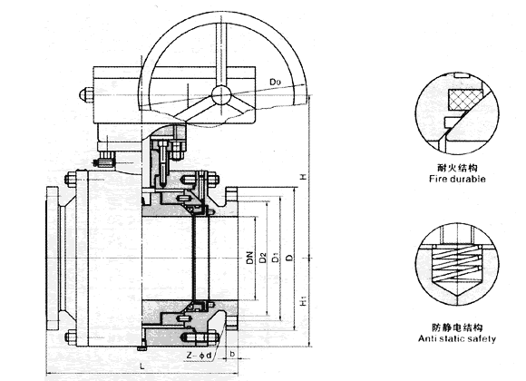
主要的設計特點有:全徑/縮徑;90度定位和帶鎖結構;特殊形式的“Y”頭手柄;防火和防靜電設計;一對相向的蝶形彈簧;防吹出閥桿;閥桿中部雙重密封結構;螺栓、螺紋墊片密封閥蓋。
【鍛鋼固定式球閥零部件材料】
| 閥體 |
閥桿 |
閥球 |
密封面 |
墊片 |
填料 |
工作溫度 |
適用介質 |
| WCB |
1Cr13 |
1Cr13 |
1Cr13
司太立合金
本體材料 |
柔性石墨
不銹鋼加柔性石墨
08軟鋼
F304 F316 |
柔性石墨
編結石墨 |
-29-425℃ |
水、蒸汽、油品 |
| WC6 |
15CrMo |
15CrMo |
-29-425℃ |
| WC9 |
25Cr2MoV |
25Cr2MoV |
| LCB |
304 |
304 |
-46-354℃ |
| CF8 |
304 |
304 |
-196-600℃ |
部分酸、堿 |
| CF3 |
304L |
304L |
| CF8M |
316 |
316 |
| CF3M |
316L |
316L |
閥體 閥桿 閥球 密封面 墊片 填料 工作溫度 適用介質
【鍛鋼固定式球閥本體材料】
1.柔性石墨 不銹鋼加柔性石墨 08軟鋼 F304 F316 柔性石墨編結石墨
2.-29-425℃ 水、蒸汽、油品
3.WC6 15CrMo 15CrMo -29-425℃
4.WC9 25Cr2MoV 25Cr2MoV
5.LCB 304 304 -46-354℃
6.CF8 304 304 -196-600℃ 部分酸、堿
7.CF3 304L 304L
8.CF8M 316 316
9.CF3M 316L 316L
【鍛鋼固定式球閥產品結構圖】

【鍛鋼固定式球閥主要連接尺寸Class 150Lb】
| 公稱通經DN |
NPS |
2" |
3" |
4" |
6" |
8" |
10" |
12" |
14" |
16" |
18" |
20" |
| DN |
50 |
80 |
100 |
150 |
200 |
250 |
300 |
350 |
400 |
450 |
500 |
| d1 |
51 |
76 |
102 |
152 |
203 |
254 |
305 |
337 |
387 |
438 |
489 |
| L |
RF |
178 |
203 |
229 |
394 |
457 |
533 |
610 |
686 |
762 |
864 |
914 |
| BW |
216 |
283 |
305 |
457 |
521 |
559 |
635 |
762 |
838 |
914 |
991 |
| H1 |
100 |
110 |
130 |
175 |
210 |
274 |
305 |
340 |
395 |
440 |
470 |
| H |
165 |
90 |
200 |
270 |
300 |
380 |
420 |
450 |
530 |
560 |
605 |
| W |
400 |
700 |
850 |
600 |
600 |
600 |
800 |
800 |
800 |
800 |
800 |
| E |
- |
- |
- |
116 |
116 |
116 |
171 |
171 |
257 |
257 |
257 |
| F |
- |
- |
- |
350 |
350 |
350 |
420 |
420 |
500 |
500 |
500 |
| WT(KG) |
24 |
50 |
75 |
195 |
280 |
440 |
570 |
800 |
1480 |
2350 |
2400 |
【Class 300Lb】
| 公稱通經DN |
NPS |
2" |
3" |
4" |
6" |
8" |
10" |
12" |
14" |
16" |
18" |
20" |
| DN |
50 |
80 |
100 |
150 |
200 |
250 |
300 |
350 |
400 |
450 |
500 |
| d1 |
51 |
76 |
102 |
152 |
203 |
254 |
305 |
337 |
387 |
438 |
489 |
| L |
RF |
178 |
203 |
229 |
394 |
457 |
533 |
610 |
686 |
762 |
864 |
914 |
| BW |
216 |
283 |
305 |
457 |
521 |
559 |
635 |
762 |
838 |
914 |
991 |
| H1 |
100 |
110 |
130 |
175 |
210 |
274 |
305 |
340 |
395 |
440 |
470 |
| H |
165 |
90 |
200 |
270 |
300 |
380 |
420 |
450 |
530 |
560 |
605 |
| W |
400 |
700 |
850 |
600 |
600 |
600 |
800 |
800 |
800 |
800 |
800 |
| E |
- |
- |
- |
116 |
116 |
116 |
171 |
171 |
257 |
257 |
257 |
| F |
- |
- |
- |
350 |
350 |
350 |
420 |
420 |
500 |
500 |
500 |
| WT(KG) |
30 |
58 |
95 |
210 |
318 |
440 |
575 |
800 |
1840 |
2700 |
2890 |
【Class 400Lb】
| 公稱通經DN |
NPS |
2" |
3" |
4" |
6" |
8" |
10" |
12" |
14" |
16" |
18" |
20" |
| DN |
50 |
80 |
100 |
150 |
200 |
250 |
300 |
350 |
400 |
450 |
500 |
| d1 |
51 |
76 |
102 |
152 |
203 |
254 |
305 |
337 |
387 |
438 |
489 |
| L |
RF |
292 |
359 |
406 |
495 |
597 |
673 |
762 |
826 |
902 |
978 |
1054 |
| BW |
295 |
356 |
410 |
498 |
600 |
676 |
765 |
829 |
905 |
978 |
1060 |
| H1 |
110 |
120 |
140 |
185 |
220 |
70 |
310 |
345 |
410 |
440 |
480 |
| H |
180 |
200 |
210 |
290 |
320 |
380 |
430 |
450 |
550 |
580 |
630 |
| W |
400 |
700 |
850 |
600 |
600 |
600 |
800 |
800 |
800 |
800 |
800 |
| E |
- |
- |
- |
116 |
116 |
116 |
171 |
171 |
257 |
257 |
257 |
| F |
- |
- |
- |
350 |
350 |
350 |
420 |
420 |
500 |
500 |
500 |
| WT(KG) |
41 |
72 |
108 |
232 |
345 |
480 |
630 |
870 |
1950 |
2800 |
3250 |
【Class 600Lb】
| 公稱通經DN |
NPS |
2" |
3" |
4" |
6" |
8" |
10" |
12" |
14" |
16" |
18" |
20" |
| DN |
50 |
80 |
100 |
150 |
200 |
250 |
300 |
350 |
400 |
450 |
500 |
| d1 |
51 |
76 |
102 |
152 |
203 |
254 |
305 |
337 |
387 |
438 |
489 |
| L |
RF |
292 |
359 |
432 |
559 |
660 |
673 |
838 |
889 |
991 |
1092 |
1194 |
| BW |
295 |
356 |
435 |
562 |
664 |
676 |
841 |
892 |
994 |
1095 |
1200 |
| RTJ |
292 |
356 |
432 |
559 |
660 |
270 |
838 |
889 |
991 |
1092 |
1194 |
| H1 |
110 |
120 |
140 |
185 |
220 |
380 |
310 |
345 |
410 |
440 |
480 |
| H |
180 |
200 |
210 |
290 |
320 |
600 |
430 |
450 |
550 |
580 |
630 |
| W |
400 |
850 |
1000 |
600 |
600 |
116 |
800 |
800 |
800 |
800 |
800 |
| E |
- |
- |
- |
116 |
115 |
350 |
171 |
171 |
150 |
83 |
123 |
| F |
- |
- |
- |
350 |
350 |
480 |
420 |
420 |
580 |
650 |
735 |
| WT(KG) |
32 |
64 |
120 |
260 |
500 |
700 |
1098 |
1520 |
2300 |
3250 |
3780 |
【Class 900Lb】
| 公稱通經DN |
NPS |
2" |
3" |
4" |
6" |
8" |
10" |
12" |
14" |
16" |
18" |
20" |
| DN |
50 |
80 |
100 |
150 |
200 |
250 |
300 |
350 |
400 |
450 |
500 |
| d1 |
51 |
76 |
102 |
152 |
203 |
254 |
305 |
324 |
375 |
425 |
473 |
| L |
RF-BW |
368 |
381 |
457 |
610 |
737 |
838 |
965 |
1029 |
1130 |
1219 |
1334 |
| RTJ |
371 |
384 |
460 |
613 |
740 |
841 |
968 |
1038 |
1140 |
1219 |
1334 |
| H1 |
135 |
158 |
190 |
200 |
250 |
285 |
350 |
400 |
480 |
530 |
580 |
| H |
190 |
200 |
230 |
300 |
375 |
420 |
460 |
530 |
600 |
640 |
700 |
| W |
600 |
600 |
600 |
600 |
800 |
800 |
800 |
800 |
800 |
800 |
800 |
| E |
116 |
116 |
116 |
171 |
171 |
83 |
83 |
123 |
123 |
180 |
180 |
| F |
350 |
350 |
350 |
420 |
420 |
650 |
650 |
735 |
735 |
735 |
735 |
| WT(KG) |
50 |
80 |
170 |
390 |
640 |
970 |
1550 |
2150 |
3320 |
4520 |
5320 |
【Class 1500Lb】
| 公稱通經DN |
NPS |
2" |
3" |
4" |
6" |
8" |
10" |
12" |
14" |
16" |
20" |
| DN |
50 |
80 |
100 |
150 |
200 |
250 |
300 |
350 |
400 |
500 |
| d1 |
51 |
76 |
102 |
146 |
194 |
241 |
289 |
318 |
362 |
440 |
| L |
RF-BW |
368 |
470 |
546 |
705 |
832 |
991 |
1130 |
1257 |
1384 |
1664 |
| RTJ |
371 |
473 |
549 |
711 |
841 |
1000 |
1146 |
1276 |
1407 |
1686 |
| H1 |
140 |
160 |
200 |
210 |
260 |
300 |
365 |
420 |
500 |
600 |
| H |
200 |
220 |
250 |
320 |
400 |
450 |
490 |
560 |
640 |
790 |
| W |
600 |
600 |
600 |
600 |
800 |
800 |
800 |
800 |
800 |
800 |
| E |
116 |
116 |
171 |
171 |
83 |
83 |
123 |
123 |
180 |
220 |
| F |
350 |
350 |
420 |
420 |
650 |
650 |
735 |
735 |
735 |
735 |
| WT(KG) |
55 |
95 |
180 |
580 |
920 |
1850 |
2150 |
3820 |
5320 |
6850 |
【鍛鋼固定式球閥的安裝】
閥門的安裝與其他機械設備安裝一樣,有一個安裝姿態(tài)問題,閥門安裝正確姿態(tài)應是內部結構型式符合介質的流向,安裝姿態(tài)符合閥門結構型式的特定要求和操作要求。另外,正確姿態(tài)含有整齊劃一,美觀大方之感,它是現代藝術造型中,技術性與藝術性兩者有機的結合。
訂貨須知:
一、①鍛鋼固定式球閥產品名稱與型號②鍛鋼固定式球閥口徑③鍛鋼固定式球閥是否帶附件以便我們的為您正確選型。
二、若已經由設計單位選定正鋼閥門鍛鋼固定式球閥型號,請按鍛鋼固定式球閥型號直接向我司銷售部訂購。
三、當使用的場合非常重要或環(huán)境比較復雜時,請您盡量提供設計圖紙和詳細參數,由我們的正鋼閥門專家為您審核把關。