氣動V型球閥詳細介紹:
氣動V型球閥產品特點
1.氣動V型球閥由V型閥體與氣動執行機構及其它附件組成。是一種直角回轉結構的高級控制閥。
2.具有出色的調節特性:V型閥具有一個近似等百分比的固有流量特性及高達300:1的可調比。因此V型閥可以在廣幅的變化范圍內提供精確的控制。
3.最大流動容積:由于它的流線型外形以及滿直角回轉控制緣故,使容積的最大值特別高,通能力特別大,流通阻力小,因此可以使用較小的更加經濟實用的閥門尺寸。
4.V型閥采用雙軸承結構,機械穩定性高,啟動扭矩小,保證了閥門具有極好的靈敏度和感應速度。
5.最大可靠(安全)性:閥體為一個整體結構,堅固耐用,操作不受管道壓力影響,并可避免閥體滲漏。
6.金屬閥座的優越密封性:V型閥采用可動金屬閥座,具有自助補償功能,并具有優越密封性能及超長的使用壽命。在流向上,泄漏量≤10-6×額定流量系數。
7.超強的剪切能力:V型閥采用金屬硬密封結構,V型閥芯及金屬閥座在回轉過程中,V型缺口與閥座產生一個強大的剪切能切斷纖維等雜質,并具有自潔功能,避免閥門卡死現象發生。
8.氣動V型球閥結構緊湊,小巧輕盈,安裝方便,維護簡便。
9.氣動執行機構采用活塞式氣缸及曲臂轉換結構,輸出力矩大,體積精小。執行機構采用全密封防水設計防護等級高。氣缸體采用進口鏡面氣缸,無油潤滑、摩擦系數小、耐腐蝕、具有超強的耐用性及可靠性。所有傳動軸承均采用邊界自潤滑軸承無油潤滑,確保傳動軸不磨損。
氣動V型球閥工作原理
氣動V型球閥具有特殊形狀的固定式V型切口球體和可調金屬閥座結構,當閥關閉時,V型切口與閥座形成楔形剪切作用,可防止球體和閥座之間污物產生的卡死現象,具有自清結功能,特別適用于含纖維料漿,污水和粘性顆粒的介質,配以閥門定位器可實現連續調節,并具流阻小,調節范圍廣,是一種用途廣泛高質量的調節閥。
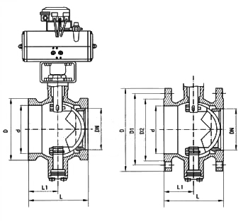
氣動V型球閥產品結構圖


氣動V型球閥附件的選項:
根據不同控制和要求可選擇下列附件:
☆切斷型附件:單電控電磁閥、雙電控電磁閥、限位開關回訊器。
☆調節型附件:電氣定位器、氣動定位器、電氣轉換器。
☆氣源處理附件:空氣過濾減壓閥、氣源處理三聯件。
☆手動機構:HVSD手操機構
氣動V型球閥產品性能規范
|
公稱壓力PN(MPa) |
試驗壓力 |
適用介質 |
適用溫度 |
|
殼體試驗 |
密封試驗 |
|
1.6 |
2.4 |
1.76 |
水、泊、氣及高粘度、含纖維、固體顆粒等介質 |
-28℃~550℃ |
|
2.4 |
3.75 |
5.75 |
|
4.0 |
6.0 |
4.4 |
|
適用規范 |
連接法蘭 |
JB79-59 GB20592-97 ANSI B16.5 |
|
試驗和檢驗 |
JB/T9092-99 API 598 |
主要零件材質表
|
零件名稱 |
材質 |
|
閥體、閥蓋 |
WCB |
CF8 |
|
密封面 |
2Cr13+氮氣 |
304+氮氣 |
|
球體 |
2Cr13+鉻硬鉻 |
304+硬鉻 |
|
閥座、閥桿 |
2Cr13 |
304 |
|
墊片 |
柔性石墨+不銹鋼 |
柔性石墨+不銹鋼 |
|
雙頭螺柱 |
35CrMoaA |
1Crl8Ni9Ti |
主要外形尺寸
|
公稱壓或壓力級 |
公稱通徑DN |
尺寸(mm) |
|
(mm) |
(in) |
W |
L |
W1 |
L1 |
d |
d1 |
H1 |
H |
|
PN1.6MPa |
25 |
- |
50 |
- |
25 |
- |
64 |
38 |
57 |
200 |
|
40 |
- |
60 |
- |
25 |
- |
82 |
49 |
63 |
205 |
|
50 |
- |
75 |
124 |
32 |
62 |
100 |
60 |
92 |
225 |
|
65 |
- |
85 |
145 |
38 |
72.5 |
120 |
75 |
100 |
235 |
|
80 |
- |
100 |
165 |
45 |
82.5 |
131 |
89 |
108 |
260 |
|
100 |
- |
115 |
194 |
50 |
97 |
158 |
113 |
117 |
270 |
|
125 |
- |
135 |
210 |
55 |
105 |
180 |
140 |
140 |
320 |
|
150 |
- |
160 |
229 |
65 |
114.5 |
216 |
164 |
177 |
340 |
|
200 |
- |
200 |
243 |
80 |
121.5 |
268 |
205 |
200 |
390 |
|
250 |
- |
240 |
297 |
92 |
148.5 |
326 |
259 |
252 |
420 |
|
300 |
- |
- |
338 |
- |
169 |
- |
300 |
270 |
510 |
|
PN2.5MPa |
25 |
- |
50 |
- |
25 |
- |
64 |
38 |
57 |
200 |
|
40 |
- |
60 |
- |
25 |
- |
82 |
49 |
63 |
205 |
|
50 |
- |
75 |
124 |
32 |
62 |
100 |
60 |
92 |
225 |
|
65 |
- |
80 |
145 |
38 |
72.5 |
120 |
75 |
100 |
235 |
|
80 |
- |
100 |
165 |
45 |
82.5 |
131 |
89 |
108 |
260 |
|
100 |
- |
115 |
194 |
50 |
97 |
158 |
113 |
117 |
270 |
|
125 |
- |
165 |
210 |
55 |
105 |
180 |
140 |
140 |
320 |
|
150 |
- |
160 |
229 |
65 |
114.5 |
216 |
164 |
177 |
340 |
|
200 |
- |
200 |
243 |
80 |
121.58 |
268 |
205 |
200 |
390 |
|
250 |
- |
340 |
297 |
92 |
148.5 |
326 |
259 |
252 |
420 |
|
300 |
- |
- |
338 |
- |
169 |
- |
300 |
270 |
510 |
|
CLASS 150 |
25 |
- |
50 |
- |
25 |
- |
64 |
38 |
57 |
200 |
|
40 |
11/2 |
60 |
- |
25 |
- |
82 |
49 |
63 |
205 |
|
50 |
2 |
75 |
124 |
32 |
62 |
100 |
60 |
92 |
225 |
|
65 |
21/2 |
85 |
145 |
38 |
72.5 |
120 |
75 |
100 |
235 |
|
80 |
3 |
100 |
165 |
45 |
82.5 |
131 |
89 |
108 |
260 |
|
100 |
4 |
115 |
194 |
50 |
97 |
158 |
113 |
117 |
270 |
|
125 |
5 |
135 |
210 |
55 |
105 |
180 |
140 |
140 |
320 |
|
150 |
6 |
160 |
229 |
65 |
114.5 |
216 |
164 |
177 |
340 |
|
200 |
8 |
200 |
243 |
80 |
121.5 |
268 |
205 |
200 |
390 |
|
250 |
10 |
240 |
297 |
92 |
148.5 |
326 |
259 |
252 |
420 |
|
300 |
12 |
- |
338 |
- |
169 |
- |
300 |
270 |
510 |
訂貨須知:
一、①氣動V型球閥產品名稱與型號②氣動V型球閥口徑③氣動V型球閥是否帶附件以便我們的為您正確選型。
二、若已經由設計單位選定正鋼閥門氣動V型球閥型號,請按氣動V型球閥型號直接向我司銷售部訂購。
三、當使用的場合非常重要或環境比較復雜時,請您盡量提供設計圖紙和詳細參數,由我們的正鋼閥門專家為您審核把關。