『氣動薄膜切斷閥』專業生產廠家,由正鋼自主生產的【調節閥】質量可靠、價格合理、售后服務完善。『氣動薄膜切斷閥』適用于各種輕重工業及樓宇管道。正鋼品質,全球共享!【調節閥】廣泛應用于:化工、石化、石油、造紙、采礦、電力、液化氣、食品、制藥、給排水、市政、機械設備配套、電子工業,城建等領域。
氣動薄膜切斷閥產品概述:
ZMQP型氣動薄膜切斷閥采用頂導向結構,配用多彈簧執行機構。具有結構緊湊、重量輕、動作靈敏、流體通道呈S流線型、壓降損失小、閥容量大、拆裝方便等優點。
切斷閥接受來自調節儀表的信號,切斷、開啟或改變介質流向,達到對壓力、流量、溫度或液位等工藝參數自動控制。廣泛應用于石油、化工、冶金、電力、輕工、紡織等各種工業部門的生產過程自動控制和遠程控制系統中。
本系列產品有薄膜式、活塞式兩種。閥體結構有單座、套筒、雙座(二位三通)三種,密封形式有填料密封和波紋管密封兩種,產品公稱壓力等級有PN10、16、40、64四種,公稱口徑范圍DN20~200mm。適用流體溫度由-60~450℃。泄漏量等級為IV級或Ⅵ級。流量特性為快開。
氣動薄膜切斷閥產品特點:
·切斷閥采用多彈簧執行機構與調節機構用三根立柱相連,整個高度可減小約30%,重量可減輕約30%。
·閥體按流體力學原理設計成等截面低流阻流道,額定流量系數增大30%。
·閥內件密封部分有嚴密型和軟密封兩種,嚴密型為堆焊硬質合金,軟密封型為軟質材料制作,關閉時密封性能優良。
·平衡型閥內件,提高了切斷閥的許用壓差。
·波紋管密封型對移動的閥桿形成完全的密封,堵絕了介質外漏的可能性。
·活塞式執行機構,操作力大,使用壓差大。
氣動薄膜切斷閥零件資料:
閥體、密封套筒:HT200、ZG230-450ZG1Cr18Ni9TiZGOCr18Ni12M02Ti
閥芯、閥座:1Cr18Ni9TiOCr18Ni12M02Ti1Cr18Ni9Ti堆焊司太萊合金
套筒、閥塞:1Cr18Ni9TiOCr18Ni12M02Ti1Cr18Ni9Ti堆焊司太菜合金
填料:聚四氟乙烯、柔性石墨
波紋膜片:丁腈橡膠夾增強滌綸織物
彈簧:60Si2Mn
閥桿、推桿:2Cr13、1Cr18Ni9Ti
閥芯、閥塞(軟質件):增強聚四氟乙烯
波紋管:1Cr18Ni9Ti
氣動薄膜切斷閥技術參數:
| 公稱通徑 DN(mm) |
15 |
20 |
25 |
32 |
40 |
50 |
65 |
80 |
100 |
125 |
150 |
200 |
額定流量 系數 KV |
單座、雙座 |
5 |
7 |
11 |
20 |
30 |
48 |
75 |
120 |
190 |
300 |
480 |
760 |
| 套筒 |
|
11 |
20 |
30 |
48 |
75 |
120 |
190 |
300 |
480 |
760 |
| 公稱壓力 PN(MPa) |
1.0 1.6 4.0 6.4 |
| 額定行程 (mm) |
8 |
12 |
20 |
25 |
40 |
50 |
有效面積 (c m 2 ) |
ZMQ 型 |
100 |
200 |
400 |
600 |
1000 |
| ZSQ 型 |
100 |
125 |
160 |
250 |
允許泄 漏量 |
硬密封 1/h |
- 般: 10 -4 X 閥額定容量;嚴密型:單、雙座: 1.2X10 -7 ,套筒 5X10 -6 X 閥額定容量 |
| 軟密封 |
VI 級 |
允許壓差 (MPa) |
ZMQ P N 正作用 |
6.4 |
5.09 |
2.91 |
1.85 |
2.18 |
1.33 |
1.52 |
0.99 |
0.62 |
0.60 |
0.69 |
0.39 |
| ZMQ P N 反作用 |
6.4 |
6.4 |
3.88 |
2.47 |
2.91 |
1.77 |
2.03 |
1.32 |
0.83 |
0.80 |
0.92 |
0.52 |
| ZSQ P N |
6.4 |
6.1 |
3.5 |
2.3 |
3.0 |
1.9 |
1.9 |
1.5 |
0.93 |
0.84 |
0.65 |
0.47 |
| Z M S QM |
公稱壓力 |
信號壓力 (kPa) |
ZMQ |
0 或 250 |
| ZSQ |
0 或 400 ~ 600 | 1)本產品性能指標貫徹GB/T4213-92; 2)表中允許壓差值若大于公稱壓力則取公稱壓力值,小于等于公稱壓力值則不變; 3)表中允許值為使用標準氣缸值,可配用不同的氣缸提高允許壓差. |
|
規格重量
 
|
| 公稱通徑 |
15 |
20 |
25 |
32 |
40 |
50 |
65 |
80 |
100 |
125 |
150 |
200 |
| A |
ф 196 |
ф 232 |
ф 308 |
ф 394 |
ф 498 |
| L |
PN16 、 40 |
130 |
150 |
160 |
180 |
200 |
230 |
290 |
310 |
350 |
400 |
480 |
600 |
| PN64 |
210 |
230 |
230 |
260 |
260 |
300 |
340 |
380 |
430 |
500 |
550 |
650 |
| H |
PN16 、 40 |
305 |
340 |
345 |
370 |
380 |
390 |
475 |
490 |
500 |
765 |
825 |
927 |
| PN64 |
320 |
350 |
354 |
372 |
382 |
397 |
473 |
475 |
517 |
805 |
882 |
815 |
| 波紋管密封型 |
375 |
409 |
414 |
431 |
441 |
468 |
555 |
570 |
613 |
855 |
915 |
1017 |
| H 1 |
PN16 、 40 |
50 |
53 |
58 |
70 |
75 |
83 |
93 |
100 |
110 |
125 |
143 |
170 |
| PN64 |
60 |
65 |
70 |
77.5 |
85 |
90 |
100 |
85 |
125 |
148 |
170 |
208 |
| H 2 |
PN16 |
115 |
115 |
121 |
130 |
140 |
153 |
178 |
190 |
200 |
260 |
320 |
360 |
| PN40 |
125 |
125 |
130 |
140 |
150 |
160 |
185 |
200 |
220 |
280 |
320 |
380 |
| PN64 |
150 |
150 |
160 |
170 |
180 |
200 |
230 |
250 |
282 |
310 |
430 |
480 |
| H 3 |
PN16 、 40 |
404 |
415 |
428 |
448 |
468 |
561 |
578 |
590 |
886 |
1008 |
1120 |
|
| PN64 |
365 |
430 |
498 |
528 |
528 |
530 |
535 |
540 |
600 |
890 |
1208 |
1305 |
| 波紋管密封型 |
395 |
465 |
478 |
509 |
509 |
548 |
641 |
658 |
670 |
976 |
1098 |
1210 |
重量 (kg) |
標準型 |
10 |
10 |
12 |
15 |
18 |
23 |
35 |
45 |
60 |
75 |
90 |
120 |
| 波紋管密封型 |
12 |
12 |
14 |
17 |
20 |
26 |
38 |
48 |
64 |
79 |
95 |
125 | |
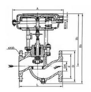
◆連接尺寸及標準
·法蘭標準:鑄鐵法蘭按GB4216-84 鑄鋼法蘭按GB9113-88、JB/T79-94
·法蘭密封面型式:PN10、PN16為凸面; PN40、PN64為凹凸面、閥體為凹面。
·結構長度:GB12221-89。
·執行機構氣信號接口:內螺紋M10X1
·閥體法蘭及法蘭端面距離可以按用戶指定的標準制造。如:ANSI、JIS、DIN等標準。
氣動薄膜切斷閥產品承諾:
正鋼閥門一貫奉行誠信為企業的靈魂。本著提供高品質產品,竭誠為用戶服務的宗旨的經營原則,公司以滿足顧客需要為宗旨,愿意通過自己的努力共同促進雙方的合作,為顧客提供優質的產品和優良的服務,正鋼實行公開服務承諾。
1.正鋼所提供的產品從供貨之日起,在正常使用情況下,質保期為12-24個月,在質保期內,一律實行:保質、保量、包修、包換等。同時還提供終身免費咨詢服務。
2.用戶在運輸、裝卸、儲存、擅自拆卸產品或養護不當、自然災害等原因造成產品損壞、使用不當或在保修期外,本公司對產品實行終身技術服務,只收取配件的成本費。
3.用戶如發現產品質量問題或服務抱怨,正鋼收到用戶函電后,根據路程的遠近距離,本市城區2小時到達現場,外區域遇重大問題保證在24小時趕到現場并及時給予答復解決,確保用戶達到滿意。
4.公司承諾質保期滿后以最合理優惠價格快速地提供保養服務,并應買方要求派技術人員赴買方現場進行技術服務。
5.公司貨源充足,品種齊全,配件豐富,應急預案和措施嚴密,可以及時解決用戶臨時性的緊急需求。
6.產品使用過程中,用戶對產品質量、使用性能、改進意見或其他建設性建議等方面的反饋,正鋼會積極采納并改進,以便進一步提高產品質量,更好地回報用戶。
氣動薄膜切斷閥訂貨說明:
1.產品選型:如有指定型號標準,請直播銷售熱線咨詢價格,了解詳情!
2.技術支持:如沒有指定產品型號規格,請把工況要求、設計圖紙、技術規范,發送傳真或郵件至本公司。
3.參數說明:請提供通徑(DN),公稱壓力(Mpa),溫度(℃),連接方式(螺紋、法蘭、對夾等),驅動方式。
4.驅動方式:手動、蝸輪、氣動、電動等。
5.產品標準:國標GB、日標JIS、美標ANSI、德標DIN等。
6.報價確認:本公司提供報價清單及技術標準說明至客戶確認,在雙方技術各方面確認后再擬定合同。
7.質量標準:質量要求、質量標準、供方對質量負責的條件按國家有關質量標準。