【外螺紋帶焊接管針型閥產品用途】
外螺紋針型閥安裝拆卸方便、連接緊固、有利于防火、防爆和耐壓能力高、密封性能良好等優點,是電站、油、化工裝置和儀表測量管路中的一種先進連接方式的閥門。
【外螺紋帶焊接管針型閥性能優點】
外螺紋針型閥可用于對焊連接、外螺紋連接,多種的連接方式使的閥門安裝拆卸方便、連接緊固、密封性能良好等優點。是電站、油、化工裝置和儀表測量管路中的一種先進連接方式的閥門。外螺紋針型閥的密封性良好,使用壽命長,即使密封面損壞后,也只需要更換易損零件,即可繼續使用。安裝時應使介質的流向與閥體上的箭頭方向一致。
【外螺紋帶焊接管針型閥技術規范】
工作壓力:≤6000PSI;
使用溫度:-29℃~+570℃;
規格尺寸:¢4~¢25;
連接形式:接管對焊連接、外螺紋;
結構特征:錐面密封,活動閥瓣;
閥體材質:碳鋼、不銹鋼、鉻鉬鋼等;
適用介質:水、油、氣等腐蝕性與非腐蝕性介質;
制造標準: GB/T12224-2005、JB/T7747-1995;
閥門檢測及試驗標準:GB/T13927-1992
【外螺紋帶焊接管針型閥零部件材料】
|
零件名稱Part name |
閥桿、閥蓋Stem,Bonnet |
閥桿、閥瓣Stem,Disc |
填料Packing |
|
J23W-16P |
鉻鎳不銹鋼 Cr.Ni Stainless steel |
鉻鎳不銹鋼 Cr.Ni Stainless steel |
聚四氟乙稀、柔性石墨PTEF,Soft graphite |
|
J23W-40、J23W-160 |
優質碳鋼 High grade carbon steel |
鉻不銹鋼 Cr. Stainless steel |
【外螺紋帶焊接管針型閥性能規范】
|
型號 Type |
公稱壓力(MPa)Nominal pressure |
試驗壓力PS(MPa) Test pressure |
工作壓力(MPa)Working pressuer |
工作溫度(℃)Working temperature |
適用介質Applicable mediun |
|
殼體Shell |
密封(液)Seal |
密封(氣)Seal |
|
J23W-16 |
1.6 |
2.4 |
1.76 |
0.6 |
1.6 |
P≤200℃ |
液化石油氣水、油品等Petroleun gas Water,Oil etc. |
|
J23W-40P |
4.0 |
6.0 |
4.4 |
0.6 |
4.0 |
|
J23W-160 |
16.0 |
17.6 |
17.6 |
0.6 |
16.0 |
C≤425℃ |
|
J23W-320P |
32.0 |
48.0 |
35.2 |
0.6 |
32.0 |
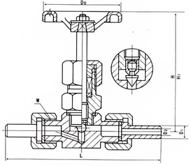
【外螺紋帶焊接管針型閥結構圖及連接尺寸】


|
公稱直徑(mm)Nominal diameter |
尺 寸Dimensions |
重量(Kg)Weight |
|
D0 |
D1 |
D2 |
L |
H1 |
H2 |
M |
|
6 |
70 |
14 |
6 |
135 |
96 |
106 |
20×1.5 |
0.8 |
|
10 |
80 |
18 |
10 |
156 |
115 |
125 |
24×1.5 |
1.1 |
|
15 |
100 |
22 |
15 |
180 |
122 |
132 |
30×2 |
2.0 |
|
20 |
110 |
28 |
18 |
185 |
156 |
166 |
36×2 |
3.0 |
|
25 |
140 |
33 |
22 |
185 |
169 |
180 |
42×2 |
3.2 |
訂貨須知:
一、①外螺紋帶焊接管針型閥產品名稱與型號②外螺紋帶焊接管針型閥口徑③外螺紋帶焊接管針型閥是否帶附件以便我們的為您正確選型。
二、若已經由設計單位選定正鋼閥門外螺紋帶焊接管針型閥型號,請按外螺紋帶焊接管針型閥型號直接向我司銷售部訂購。
三、當使用的場合非常重要或環境比較復雜時,請您盡量提供設計圖紙和詳細參數,由我們的正鋼閥門專家為您審核把關。