【高壓平衡式截止閥結構特點】
|
1、閥瓣沒有通孔,介質從閥瓣流入閥門中腔使閥瓣所受介質平衡,啟閉力矩小。 2、升降式閥桿結構,開啟輕便,密封性好。 3、采用F-4復合橡膠密封圈,密封性好,且耐酸堿腐蝕 |
【高壓平衡式截止閥主要零部件材料】
零件 |
材料 |
J/L46Y-220/320C |
J/L446W-220/320R |
閥體 |
優質碳鋼 |
316L.Mod |
閥瓣 |
鉻不銹鋼 |
316L.Mod |
下閥桿 |
鉻不銹鋼 |
316L.Mod |
填料箱 |
優質碳鋼 |
316L.Mod |
“0”型圈 |
F-4復合膠圈 |
F-4復合膠圈 |
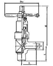
【高壓平衡式截止閥結構圖】


【高壓平衡式截止閥主要連接尺寸】
公稱壓PN(MPa) |
公稱通徑DN(mm) |
外形尺寸(mm) |
L |
H |
Dn |
D |
D0 |
16 20 |
25 |
108 |
310 |
23 |
42 |
200 |
32 |
1 14 |
325 |
29 |
54 |
240 |
40 |
121 |
340 |
36 |
60 |
280 |
50 |
140 |
380 |
45 |
73 |
300 |
65 |
165 |
3 95 |
58 |
89 |
360 |
80 |
184 |
475 |
72 |
108 |
400 |
100 |
229 |
495 |
90 |
133 |
450 |
125 |
266 |
545 |
113 |
159 |
500 |
150 |
305 |
57 5 |
135 |
192 |
550 |
25 35 45 |
25 |
108 |
310 |
23 |
42 |
200 |
32 |
114 |
325 |
29 |
54 |
240 |
40 |
121 |
340 |
36 |
60 |
280 |
50 |
140 |
380 |
45 |
73 |
300 |
65 |
165 |
395 |
58 |
89 |
360 |
80 |
184 |
475 |
72 |
108 |
400 |
100 |
229 |
495 |
90 |
133 |
450 |
125 |
266 |
545 |
113 |
159 |
500 |
150 |
305 |
575 |
135 |
192 |
550 |
【高壓平衡式截止閥安裝注意事項】
1)、安裝位置、高度、進出口方向必須符合設計要求,連接應牢固緊密。
2)、安裝在保溫管道上的各類手動閥門,手柄均不得向下。
3)、閥門安裝前必須進行外觀檢查,閥門的銘牌應符合現行國家標準《通用閥門標志》GB 12220的規定。對于工作壓力大于1.0 MPa 及在主干管上起到切斷作用的閥門,安裝前應進行強度和嚴密性能試驗,合格后方準使用。強度試驗時,試驗壓力為公稱壓力的1.5倍,持續時間不少于5min,閥門殼體、填料應無滲漏為合格。嚴密性試驗時,試驗壓力為公稱壓力的1.1倍;試驗壓力在試驗持續的時間應符合GB標準要求,以閥瓣密封面無滲漏為合格。
訂貨須知:
一、①高壓平衡式截止閥產品名稱與型號②高壓平衡式截止閥口徑③高壓平衡式截止閥是否帶附件以便我們的為您正確選型。
二、若已經由設計單位選定正鋼閥門高壓平衡式截止閥型號,請按高壓平衡式截止閥型號直接向我司銷售部訂購。
三、當使用的場合非常重要或環境比較復雜時,請您盡量提供設計圖紙和詳細參數,由我們的正鋼閥門專家為您審核把關。