【固定式球閥使用范圍】
球閥在石油、天然氣、煤炭和礦石的開采、提煉加工和管道輸送系統中;在化工產品、醫藥和食品生產種;在水電、火電和核電的電力生產系統中;在城市和工業企業的給排水、供熱、和供氣系統中;在農田的排灌系統中;在治金生產系統中得以廣泛的應用,是一種與生產建設、國防建設和人民生活息息相關的重要機械產品。球閥密閉在各類管路系統種用于截斷或接通介質流,使介質按照預定的程序輸送到各個指定點。
【固定式球閥材料選用表】
閥體 |
閥桿 |
閥球 |
密封面 |
墊片 |
填料 |
工作溫度 |
適用介質 |
WCB |
1Cr13 |
1Cr13 |
1Cr13
司太立合金
本體材料 |
柔性石墨
不銹鋼加柔性石墨
08軟鋼
F304 F316 |
柔性石墨
編結石墨 |
-29-425℃ |
水、蒸汽、油品 |
WC6 |
15CrMo |
15CrMo |
-29-425℃ |
WC9 |
25Cr2MoV |
25Cr2MoV |
LCB |
304 |
304 |
-46-354℃ |
CF8 |
304 |
304 |
-196-600℃ |
部分酸、堿 |
CF3 |
304L |
304L |
CF8M |
316 |
316 |
CF3M |
316L |
316L |
【固定式球閥性能規范】
壓力等級 |
公稱壓力(PN) |
磅級(Class) |
1.6 |
2.5 |
4.0 |
6.4 |
10.0 |
150 |
300 |
400 |
600 |
試驗壓力
|
殼體試驗
|
2.4 |
3.75 |
6.0 |
9.6 |
15.0 |
3.03 |
7.5 |
10.2 |
15.0 |
密封試驗
|
1.76 |
2.75 |
4.4 |
7.04 |
11.0 |
2.2 |
5.5 |
7.48 |
11.0 |
適用工況 |
適用介質 |
紙漿、漿料、粉塵及含各種固體顆粒的介質 |
適用溫度 |
-196~≤550℃ |
適用規范
|
設計制造按 |
GB12237-89 |
API 6D |
JP17S-48 |
法蘭尺寸按
|
JB79-59、GB9113 、HG20592-07 |
ANSI B16.5 |
JIS B2212-2214 |
結構長度按
|
GB12221-89 |
ANSI B16.10 |
JIS B2002 |
檢驗試驗按
|
|
JB/T9092-99 |
API 598 |
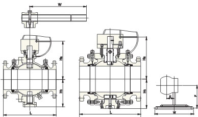
【固定式球閥結構示意圖】

【固定式球閥主要連接尺寸】
Class 150Lb (mm)
公稱通經DN |
2" |
2-1/2" |
3" |
4" |
5" |
6" |
8" |
10" |
12" |
14" |
16" |
18" |
20" |
24" |
28" |
32" |
36" |
40" |
d1 |
51 |
64 |
76 |
102 |
127 |
152 |
203 |
254 |
305 |
337 |
387 |
438 |
489 |
591 |
686 |
781 |
876 |
978 |
L |
RF |
178 |
191 |
203 |
229 |
356 |
394 |
457 |
533 |
610 |
686 |
762 |
864 |
914 |
1067 |
1245 |
1372 |
1524 |
1753 |
BW |
216 |
241 |
283 |
305 |
381 |
457 |
521 |
559 |
635 |
762 |
838 |
914 |
991 |
1143 |
1346 |
1524 |
1727 |
1880 |
H |
102 |
114 |
127 |
152 |
184 |
219 |
273 |
360 |
395 |
430 |
470 |
550 |
580 |
700 |
800 |
950 |
1100 |
1200 |
手動 |
H1 |
107 |
125 |
152 |
178 |
300 |
330 |
398 |
495 |
580 |
625 |
670 |
698 |
840 |
1050 |
1100 |
1150 |
1247 |
1374 |
E |
- |
- |
- |
- |
- |
- |
116 |
116 |
171 |
171 |
257 |
257 |
257 |
150 |
83 |
83 |
123 |
123 |
F |
- |
- |
- |
- |
- |
- |
350 |
350 |
420 |
420 |
400 |
400 |
400 |
410 |
650 |
650 |
735 |
735 |
W |
230 |
400 |
400 |
650 |
1050 |
150 |
600 |
600 |
800 |
800 |
800 |
800 |
800 |
800 |
800 |
800 |
800 |
800 |
Wt(Kg) |
12 |
16 |
22 |
35 |
58 |
74 |
205 |
322 |
460 |
576 |
864 |
1280 |
1600 |
3540 |
4500 |
5940 |
7540 |
9320 |
電動 |
H2 |
- |
- |
- |
- |
- |
554 |
600 |
652 |
760 |
770 |
830 |
- |
940 |
1020 |
1115 |
- |
- |
- |
L1 |
- |
- |
- |
- |
- |
235 |
235 |
235 |
259 |
400 |
400 |
- |
410 |
410 |
410 |
- |
- |
- |
氣動 |
H3 |
274 |
379 |
389 |
479 |
552 |
666 |
736 |
926 |
159 |
1127 |
1393 |
1468 |
1538 |
1370 |
1450 |
- |
- |
- |
L2 |
270 |
405 |
405 |
576 |
576 |
776 |
776 |
776 |
1060 |
1060 |
1360 |
1360 |
1360 |
2840 |
2840 |
- |
- |
- |
class 300Lb
公稱通經DN |
2" |
2-1/2" |
3" |
4" |
5" |
6" |
8" |
10" |
12" |
14" |
16" |
18" |
20" |
24" |
28" |
32" |
36" |
40" |
d1 |
51 |
64 |
76 |
102 |
127 |
152 |
203 |
254 |
305 |
337 |
387 |
438 |
489 |
591 |
686 |
781 |
876 |
978 |
L |
RF |
216 |
241 |
283 |
305 |
381 |
403 |
502 |
568 |
648 |
762 |
838 |
914 |
991 |
1143 |
1346 |
1524 |
1727 |
1880 |
BW |
216 |
241 |
283 |
305 |
381 |
457 |
521 |
559 |
635 |
762 |
838 |
914 |
991 |
1143 |
1346 |
1524 |
1727 |
1880 |
H |
102 |
114 |
127 |
152 |
184 |
219 |
273 |
360 |
395 |
430 |
470 |
550 |
580 |
700 |
800 |
950 |
1100 |
1200 |
手動 |
H1 |
107 |
125 |
152 |
178 |
300 |
330 |
398 |
495 |
580 |
625 |
670 |
698 |
840 |
1050 |
1100 |
1150 |
1247 |
1374 |
E |
- |
- |
- |
- |
- |
- |
116 |
116 |
171 |
171 |
257 |
257 |
257 |
150 |
83 |
83 |
123 |
123 |
F |
- |
- |
- |
- |
- |
- |
350 |
350 |
420 |
420 |
400 |
400 |
400 |
410 |
650 |
650 |
735 |
735 |
W |
230 |
400 |
400 |
650 |
1050 |
150 |
600 |
600 |
800 |
800 |
800 |
800 |
800 |
800 |
800 |
800 |
800 |
800 |
Wt(Kg) |
15 |
24 |
30 |
55 |
87 |
118 |
255 |
370 |
533 |
640 |
1030 |
1524 |
2100 |
4200 |
5300 |
7860 |
8684 |
10300 |
電動 |
H2 |
- |
- |
- |
- |
- |
235 |
235 |
400 |
400 |
410 |
410 |
- |
420 |
690 |
690 |
- |
- |
- |
L1 |
- |
- |
- |
- |
- |
74 |
350 |
350 |
420 |
420 |
400 |
- |
400 |
410 |
650 |
- |
- |
- |
氣動 |
H3 |
340 |
379 |
452 |
479 |
646 |
666 |
814 |
1002 |
1059 |
1150 |
1205 |
1250 |
1295 |
1390 |
1470 |
- |
- |
- |
L2 |
405 |
405 |
574 |
574 |
756 |
756 |
1060 |
1060 |
1060 |
1360 |
1360 |
2840 |
2840 |
3300 |
3300 |
- |
- |
- |
class 400Lb
公稱通經DN |
2" |
2-1/2" |
3" |
4" |
6" |
8" |
10" |
12" |
14" |
16" |
20" |
24" |
28" |
d1 |
51 |
64 |
76 |
102 |
152 |
203 |
254 |
305 |
337 |
387 |
489 |
591 |
686 |
L |
RF |
292 |
330 |
356 |
406 |
495 |
597 |
673 |
762 |
826 |
902 |
1054 |
1232 |
1397 |
BW |
295 |
333 |
359 |
410 |
498 |
600 |
676 |
765 |
829 |
905 |
1060 |
1241 |
1410 |
H |
114 |
124 |
133 |
159 |
250 |
294 |
395 |
445 |
500 |
530 |
660 |
800 |
900 |
手動 |
H1 |
108 |
155 |
197 |
235 |
300 |
374 |
445 |
512 |
550 |
615 |
810 |
1010 |
1180 |
E |
116 |
116 |
116 |
116 |
116 |
171 |
171 |
257 |
257 |
257 |
150 |
83 |
123 |
F |
350 |
350 |
350 |
350 |
350 |
420 |
420 |
400 |
400 |
400 |
410 |
650 |
735 |
W |
600 |
600 |
600 |
600 |
600 |
800 |
800 |
800 |
800 |
800 |
800 |
800 |
800 |
Wt(Kg) |
23 |
35 |
49 |
91 |
192 |
355 |
640 |
880 |
1100 |
1540 |
2800 |
530 |
5700 |
電動 |
H2 |
- |
- |
- |
- |
554 |
574 |
931 |
771 |
867 |
805 |
979 |
1085 |
1147 |
L1 |
- |
- |
- |
- |
235 |
235 |
400 |
400 |
410 |
410 |
420 |
690 |
690 |
電動 |
H3 |
340 |
- |
- |
- |
666 |
895 |
1002 |
1059 |
1160 |
1250 |
1320 |
1470 |
1520 |
L2 |
405 |
- |
- |
574 |
756 |
1060 |
1060 |
1360 |
1360 |
2840 |
2840 |
3300 |
3300 |
class 600Lb
公稱通經DN |
2" |
2-1/2" |
3" |
4" |
6" |
8" |
10" |
12" |
14" |
16" |
20" |
24" |
28" |
d1 |
51 |
64 |
76 |
102 |
152 |
203 |
254 |
305 |
337 |
387 |
489 |
591 |
686 |
L |
RF |
292 |
330 |
356 |
432 |
559 |
660 |
787 |
838 |
889 |
991 |
1194 |
1397 |
1549 |
BW |
295 |
333 |
359 |
435 |
562 |
664 |
791 |
841 |
892 |
994 |
1200 |
1407 |
1562 |
H |
114 |
124 |
133 |
159 |
250 |
294 |
395 |
445 |
500 |
530 |
660 |
800 |
900 |
手動 |
H1 |
108 |
155 |
197 |
235 |
300 |
374 |
445 |
512 |
550 |
615 |
810 |
1010 |
1180 |
E |
116 |
116 |
116 |
116 |
116 |
171 |
171 |
257 |
257 |
257 |
150 |
83 |
123 |
F |
350 |
350 |
350 |
350 |
350 |
420 |
420 |
400 |
400 |
400 |
410 |
650 |
735 |
W |
600 |
600 |
600 |
600 |
600 |
800 |
800 |
800 |
800 |
800 |
800 |
800 |
800 |
Wt(Kg) |
35 |
38 |
55 |
102 |
232 |
390 |
710 |
960 |
1700 |
1970 |
3250 |
5800 |
6700 |
電動 |
H2 |
- |
- |
- |
- |
569 |
658 |
694 |
765 |
825 |
917 |
998 |
1098 |
1185 |
L1 |
- |
- |
- |
- |
235 |
235 |
400 |
400 |
410 |
410 |
420 |
690 |
690 |
電動 |
H3 |
340 |
- |
- |
- |
666 |
895 |
1002 |
1059 |
1160 |
1250 |
1320 |
1470 |
1520 |
L2 |
405 |
- |
- |
574 |
756 |
1060 |
1060 |
1360 |
1360 |
2840 |
2840 |
3300 |
3300 |
class 900Lb
公稱通經DN |
2" |
2-1/2" |
3" |
4" |
6" |
8" |
10" |
12" |
14" |
16" |
18" |
20" |
24" |
d1 |
51 |
64 |
76 |
102 |
152 |
203 |
254 |
305 |
327 |
375 |
426 |
473 |
572 |
L |
RF |
368 |
419 |
381 |
457 |
610 |
737 |
838 |
965 |
1029 |
1130 |
1219 |
1321 |
1549 |
BW |
371 |
422 |
384 |
460 |
613 |
740 |
841 |
968 |
1038 |
1140 |
1232 |
1334 |
1568 |
H |
217 |
241 |
259 |
297 |
360 |
322 |
420 |
470 |
510 |
600 |
700 |
720 |
810 |
手動 |
H1 |
126 |
158 |
191 |
216 |
270 |
394 |
502 |
572 |
675 |
762 |
866 |
894 |
965 |
E |
116 |
16 |
116 |
116 |
171 |
171 |
257 |
257 |
150 |
150 |
180 |
180 |
220 |
F |
350 |
350 |
350 |
350 |
420 |
420 |
400 |
400 |
410 |
410 |
650 |
650 |
735 |
W |
600 |
600 |
600 |
600 |
800 |
800 |
800 |
800 |
800 |
800 |
800 |
800 |
800 |
Wt(Kg) |
50 |
60 |
80 |
125 |
270 |
|
|
|
|
|
|
|
【固定式球閥產品優點】
1.手動部分可采用鋼板壓制的手柄或不銹鋼鑄造的手柄。手柄設有限位結構,在閥門開啟、關閉的位置設定限位,當閥門使用在關鍵裝置上時,限位塊上設有鎖孔可鎖定開關 位置避免誤操作。手柄上有明顯地開和關標識。
2.閥桿采用A182F(1Cr13)整體鍛造并調制處理,硬度達到HB220~250。閥桿通過平鍵或花鍵或方契與手柄連接,通用性強,拆裝方便。閥桿設有防吹出結構。
3.閥門的填料選用編結、柔性石墨密封圈或四氟烯密封圈,使得閥桿在一定的潤滑情況下實現可靠的密封。
4.根據需要,球閥可設計成防靜電結構,在球體與閥桿、閥桿與閥體之間設置導電彈簧,避免靜電打火點燃易燃物質,確保系統安全。
5.密封副形式多樣。根據不同工況可選用軟密封、硬密封、防火閥座等結構;DN150以下為浮球形式,DN200以下為固定球形式。
6.球閥閥座處可設置輔助密封結構,在閥座和閥桿部位加裝注脂閥,緊急情況下可暫時密封,并可根據需要加長閥桿以適宜埋地鋪設得場所。